AR HOUSE – Sustainable Boutique Residence in Tricase, Puglia

Location: Tricase (LE), Salento – Puglia, Italy

Concept: Sustainable residential building (nZEB – nearly Zero Energy Building) with high energy efficiency and contemporary architecture.

Residential units:

  • Apartment A – Ground floor: approx. 168.49 m² net internal area

  • Apartment B – Ground floor: approx. 89.31 m² net internal area

  • Apartment C – First floor: approx. 195.05 m² net internal area

  • Apartment D – Second floor: approx. 195.19 m² net internal area

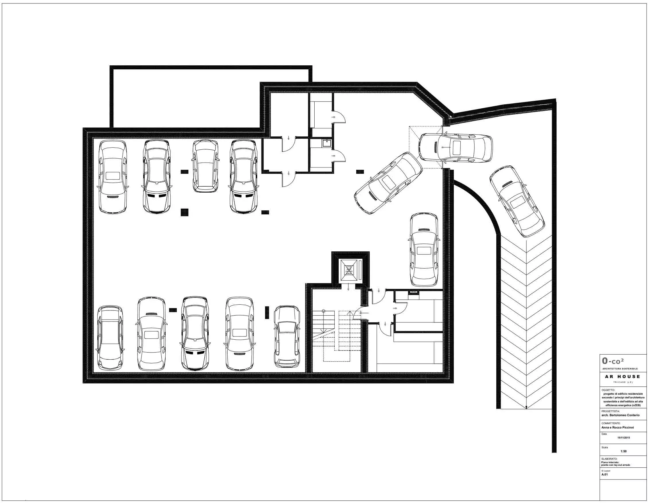
Parking: Underground garage with multiple parking spaces and direct access to the core of the building via lift.

Highlights

  • New-build project designed according to sustainable architecture principles and high energy efficiency (nZEB)

  • Only four generous apartments, each with large open-plan living areas and extensive outdoor spaces (gardens or terraces)

  • Private underground garage with internal staircase and lift connection (OTIS Gen2 Comfort 8/630)

  • Functional layouts with clear zoning between living and sleeping areas

  • Attractive location in Tricase, in the heart of Salento – ideal as primary residence or holiday home

Apartment A – Ground Floor Garden Residence

Size: approx. 168.49 m² net internal area

  • Very large open-plan living and dining area of around 69.9 m² with direct access to the surrounding garden / outdoor lounge.

  • Comfortable bedroom wing with multiple bedrooms, bathrooms and wardrobe/storage rooms as shown in the layout.

  • Several bathrooms and utility spaces (laundry, storage).

  • Ideal for families or buyers seeking spacious single-level living with private garden.

Apartment B – Ground Floor Compact Suite

Size: approx. 89.31 m² net internal area

  • Efficient layout with bright living-dining area of around 32.7 m² opening to private outdoor space.

  • Comfortable sleeping area with bedroom, bathroom and ancillary spaces.

  • Ideal as a smaller primary residence, guest apartment, or rental investment.

Apartment C – First Floor Panoramic Residence

Size: approx. 195.05 m² net internal area

  • Impressive open-plan living zone of about 72.37 m², ideal for a generous living, dining and kitchen area.

  • Several well-proportioned rooms (bedrooms / office / studio), plus bathrooms and storage.

  • Wide terraces on multiple sides providing outdoor seating and dining areas.

Apartment D – Second Floor Penthouse

Size: approx. 195.19 m² net internal area

  • Large central living space of about 72.37 m² with direct access to expansive terraces on both sides – perfect for indoor/outdoor living.

  • Multiple rooms suitable for bedrooms, office or guest suites, with bathrooms and storage rooms.

  • True penthouse atmosphere with maximum light and open views.

Underground Garage

The underground level offers multiple parking bays, comfortable manoeuvring space and direct access to staircase and lift, ensuring weather-protected and barrier-free access to all units.

Scroll to Top